The Foundry Currumbin Logo


Welcome to The Foundry, where history is beautifully restored in the heart of Currumbin Waters on the stunning Gold Coast of Queensland.

Since 1960, The Foundry has stood as a cornerstone of Currumbin's industrial history. Now, this iconic site is being reimagined into a modern industrial estate that seamlessly blends heritage with contemporary functionality.

Preserving elements of the original architecture, The Foundry features meticulously refurbished buildings repurposed into warehouse and display, and industrial spaces. Expect polished concrete floors, soaring ceilings, exposed steel structures, and abundant natural light—all complemented by refreshed landscaping that enhances the estate's professional environment.

Positioned as a hub for industry-leading businesses, warehouse and display operators, and industrial users, The Foundry offers a versatile destination designed to inspire and elevate. With ample on-site parking and thoughtfully designed spaces, this development combines convenience, style, and practicality.


The Foundry is underway. Step inside the Gold Coast's most exciting industrial development and see firsthand how we're reimagining 63 Currumbin Creek Road. Modern warehouse and display spaces, and industrial capability.

Watch it all take shape.

The Foundry In Progress

63 Currumbin Creek Rd, Currumbin Waters QLD 4223

Currumbin’s serene surroundings provide an environment for productivity and creativity, attracting entrepreneurs and investors seeking a balance between work and nature. As the Gold Coast’s industrial landscape evolves, Currumbin Waters emerges as a promising destination for those looking to harness the region’s economic potential while embracing its stunning natural surroundings.

+ 14,000+ cars pass the site per day

+ 30,000 population of Currumbin Locals in immedate proximity to Foundry

+ Gold Coast Airport 6.5M passengers transit annually

+ 2.5KM to some of Australia’s most beautiful beaches

+ Gold Coast 2.1% population growth

 

Warehousing and Display

01

Tenancies ranging from 200m² - 400m². Onsite parking available.

Warehousing and Display

The Foundry's warehouse and display offering includes newly refurbished tenancies ranging from 200m² up to 400m². All tenancies feature new glazed shopfronts with high exposure to passing traffic. Optional polished concrete floors and fitout options are available for kitchens and amenities. There is ample onsite parking for customers, staff, and visitors, with loading areas for bulky stock deliveries.

The Foundry Currumbin

Industrial Warehousing and Hardstand

02

Warehouses from 700m² to 4,000m²

Designed to meet the diverse needs of businesses, The Foundry offers facilities ideal for manufacturing, warehousing, storage, logistics, and heavy-duty industrial activity. Industrial warehouse spaces range from 700m² to 4,000m², with concrete hardstand areas suitable for large vehicles. Strategically located just 1km from the M1 Motorway, the site features large industrial roller doors, high power supply, LED high-bay lighting, and excellent access for trucks and machinery. Whether you're expanding your operations or establishing a new base on the Gold Coast, The Foundry delivers the perfect balance of scale, practicality, and access.

The Foundry Currumbin

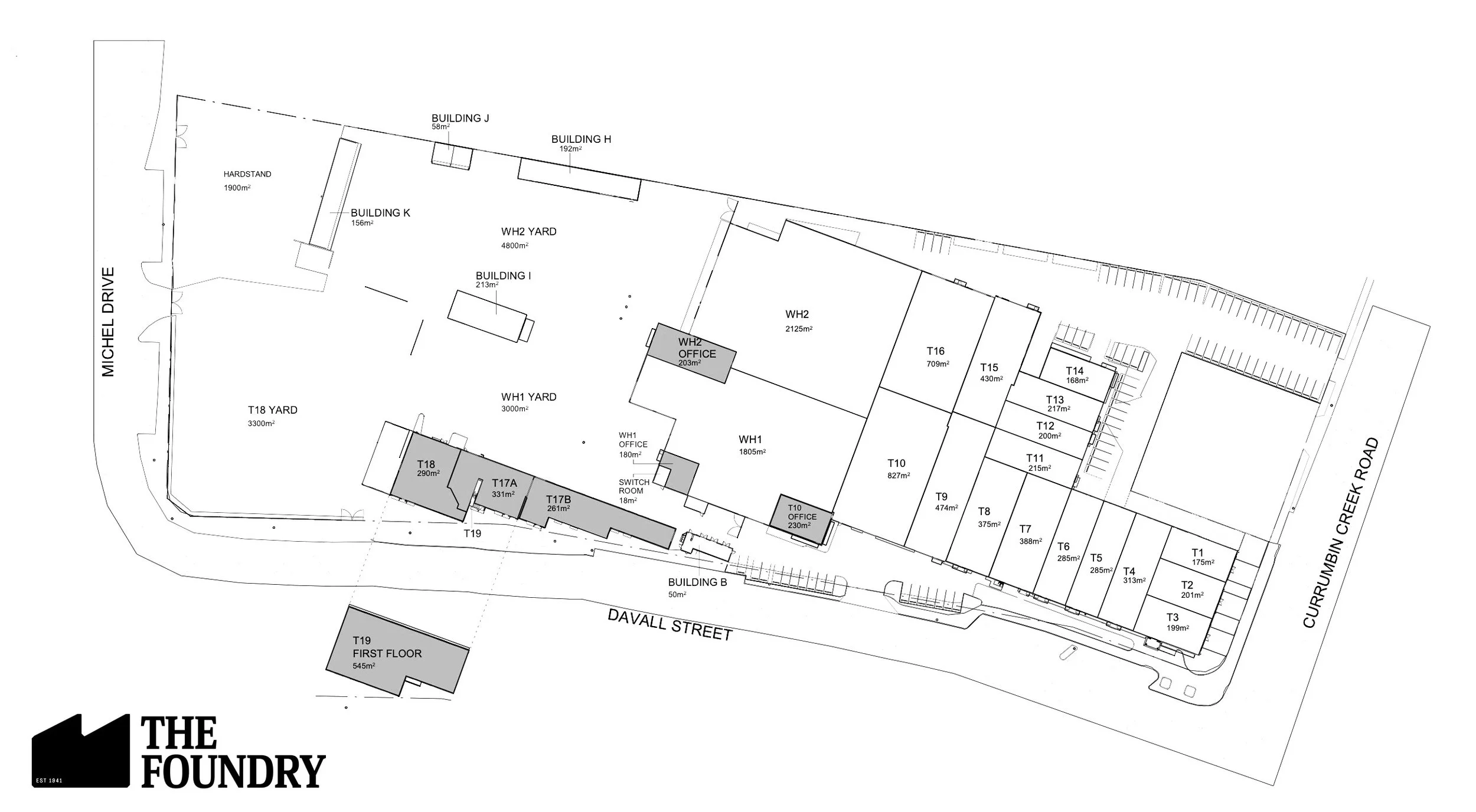
Total site plan

The Foundry's master plan brings together warehousing and display rooms, and industrial spaces across a thoughtfully refurbished estate. With multiple building types and flexible configurations ranging from 200m² to 4,000m², the site accommodates businesses at every scale—from warehouse and display operators to large-format industrial users. Enhanced circulation, refreshed landscaping, and improved access create an environment where functionality meets professional presentation. Whether you're seeking high-exposure frontage or substantial warehouse capacity with hardstand areas, The Foundry's layout delivers efficient design with practical infrastructure throughout.

Site plan of The Foundry Currumbin with labeled buildings, yards, and streets, including structures such as warehouses, offices, and storage areas. The plan shows streets, parking, and the layout of various structures.

For leasing enquires please contact